Przejdź do treści

P12L 187m2

Nasz profil > KATEGORIE > DOMY PARTEROWE
KOLEKCJE PROJEKTÓW:

P12  
wersja w lustrzanym odbiciu
(tu zobacz wersję podstawową)


cena: 2499zł


Projekt wykonany przez

naszą pracownię w 2010r. na indywidualne zamówienie, poprzedzony ciężką, wielo tygodniową pracą koncepcyjną nad dosłownie każdym szczegółem.

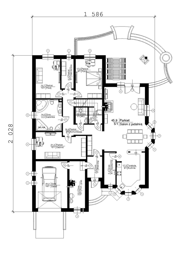
Pełna funkcja dzienna i

nocna znajdują się całkowiecie w części parteru, dla wygody domowników.  Aby jednak nie marnować bezpowrotnie przestronnego, wysokiego strychu - zaprojektowaliśmy stałą (lecz dyskretnie ukrytą) klatkę schodową.
Daje to w przyszłości możliwość nieograniczonej adaptacji budynku na duży dom z użytkowym poddaszem, nawet dla dwóch rodzin.    

Powierzchnia mieszkalna domu to 175m2, a zaplecze pomieszczeń hobby i garażu - 37,2m2.

Do cech szczególnych zaliczyć można:

- reprezentacyjne
i przestronne, potrójnie szklone pomieszczenia kuchenno-jadalne, stanowiące tym samym spójną całość (od wewnątrz wrażenie jest niesamowite);
- salon
główny połączony 3-metrową szklaną ścianą z salonem ogrodowym - całkowicie zadaszonym i wyposażonym (w urządzony na  stałe) kamienny grill lub wędzarnię;
- imponująca rozmachem
kuchnia z trójstronnym widokiem na frontową część posesji
- widna spiżarnia
dostępna bezpośrednio z kuchni;
- pokój kąpielowy
z miejscem na saunę
- osobne WC
- osobne miejsce na pralnię
- pomieszczenie gospodarcze porównywalne  wielkością z pokojem w innych domach - idealne dla majsterkowicza;

P12 - Parterowy, komfortowy dom z werandą i grillem... - wersja w lustrzanym odbiciu
... Klasyczna, ponadczasowa architektura, wygoda i komfort od początku do końca.

Cena: 2499zł/kpl.

Dyskretnie ukryta klatka schodowa daje w przyszłości możliwość nieograniczonej adaptacji budynku na duży dom z użytkowym poddaszem, nawet dla dwóch rodzin.

Powierzchnia
użytkowa

187,1m2

Pow. zabudowy

264,3m2

Powierzchnia
użytk. z garażem

212,3m2

Kubatura

937,0m3

Wysokość

8,0m

Kąt dachu

30 st.

Garaż

25,2m2

DO WERSJI PODSTAWOWEJ:
ELEWACJA FRONTOWA:
ELEWACJA OGRODOWA:

Ponadczasowy kształt, nienaganne proporcje i szlachetne materiały wykończeniowe sprawią, że pomimo różnych trendów, ten dom będzie zawsze pozytywnie wyróżniał się wśród innych.
Z każdej strony: tak od ulicy jak i od ogrodu.

Aranżacja:
(kliknij w obrazek, aby powiększyć)

Podstawowe dane techniczne:

- Powierzchnia zabudowy: 264,3m2
- Powierzchnia mieszkalna:  175,0m2 - bez garażu
- Powierzchnia użytkowa bez garazu:  187,1m2
- Powierzchnia użytkowa z garażem:  212,3m2
- Powierzchnia garażu:  25,2m2

- ciepłe ściany zewnętrzne
: pustak ceramiczny 29cm  
 (Porotherm) + styropian 15 cm, U=0,21W/(m2xK) (!)

- elewacje: tynk cienkowarstwowy w różnych kolorach, elementy z płytek klinkierowych, itp.;
- strop: żelbetowy płytowy
- dach: kopertowy, nachylenie dachu w stopniach: 30
- więźba drewniana, pokrycie dachu: dachówka lub inne w ramach adaptacji
Ściany wewnętrzne:
- działowe – z pustaków Porotherm 12cm (11,5P+W)  na   zaprawie  cementowo–  wapiennej
- wewnętrzne konstrukcyjne - z  bloczków  Porotherm P+W  gr. 25cm odm. kl. 15, na zaprawie cementowo-wapiennej
Kominy: - z  cegły   ceramicznej  pełnej  klasy  150  na   zaprawie  cementowo –  wapiennej oraz obudowy ceramiczne lub gazobetonowe prefabrykowane kanałów wentylacyjnych.
- C.O. – kaloryferowe
- kocioł C.O.: gazowy
- dodatkowo
kominek z systemem Dystrybucji Gorącego Powietrza (turbinowy)
- ściany fundamentowe z bloczka betonowego + ławy żelbetowe
- Projekt z wszystkimi instalacjami: C.O., gaz., wod., kan.,       elektr.

Budynek  przewidziano  do  realizacji  w  technologii  tradycyjnej


Wróć do spisu treści