Przejdź do treści

U12L 116m2

Nasz profil > KATEGORIE > DOMY PARTEROWE Z PODDASZEM
KOLEKCJE PROJEKTÓW:

Powierzchnia
użytkowa

116,2m2

Pow. zabudowy

88,0m2

Powierzchnia
zabud. z garażem

115,2m2

Kubatura

626m3

Wysokość

8,7m

Kąty dachów

45 i 30st.

Garaż (+ 22,4m2)

tak/nie

U12
wersja lustrzana
(tu zobacz wersję podstawową)



NIEDUŻY
, a zarazem zadziwiająco przestronny dom  o powierzchni użytkowej 116,2m2, docelowo dla 4-5 osobowej rodziny.
Sam parter już w zupełności spełnia zapotrzebowanie na przestrzeń mieszkalną dla nielicznej rodziny lub młodego małżeństwa, planującego wykończenie  poddasza w przyszłości
, w miarę napływu funduszy.


Na parterze - pokój dzienny z kominkiem, duża kuchnia ze spiżarką pod schodami, jadalnia na wprost kuchni, dodatkowy pokój, łazienka z prysznicem, wygodne pomieszczenie gospodarcze, a na piętrze - duża sypialnia rodziców z garderobą, dwie sypialnie dla dzieci i duża łazienka z pralnią!


To wszystko wygospodarowane na 116m2 powierzchni!
- Dom z możliwością budowy bez garażu
(lub z garażem w drugim etapie) - w zależności od funduszy, ponieważ garaż nie jest konstrukcyjnie zależny od reszty budynku.
- Mała powierzchnia zabudowy
(8mx11m bez garażu) i prostota konstrukcji - sprawiają, że dom U12 jest tani w budowie (mało fundamentów, mało stropu, mało dachu, tania robocizna).

- Wysoka ścianka kolankowa
tzw. "na 4 pełne pustaki" - daje na poddaszu bardzo małe skosy. Ścianka kolankowa po wykończeniu ma ~120cm wysokości, co czyni powierzchnię podłogi praktycznie całą wykorzystywalną i faktyczna powierzchnia użytkowa jest większa niż obliczana normatywnie. W tym projekcie nie trzeba "podnosić ścianki kolankowej" na własną rękę. Już jest podniesiona.

- Prostokątny kształt sprawia, że dom jest tani i łatwy w budowie. Prostota konstrukcji dachu również decyduje o jego opłacalności (lekka blachodachówka, proste połacie, lukarna - bez ścianek drewnianych - ciepła i prosta w wykonaniu).

U12 - projekt małego domu   ____  WERSJA LUSTRZANA /podstawowa
Parter z poddaszem, z garażem lub bez  (1-stanowisk.)
- kuchnia, 5 pokoi, spiżarka, 2 łazienki, garderoba, pralnia, pom. gosp._____ zapytaj o ten projekt...

Cena:
3 000 zł/kpl.


Wygodny, MAŁY DOM dla 4-5 osobowej rodziny. Niewielka bryła 8x11m mieści w sobie całą

gamę przydatnych pomieszczeń i zakamarków. Pokój na dole jest dodatkowym atutem...

ZOBACZ WERSJĘ PODSTAWOWĄ:
ELEWACJA BOCZNA:
ELEWACJA GARAŻOWA:
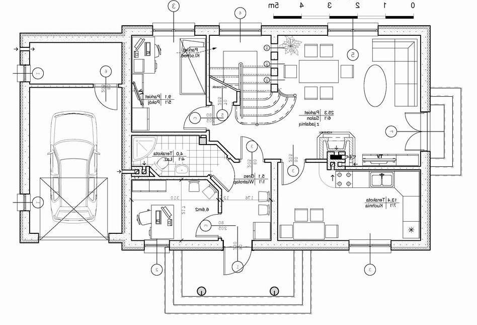
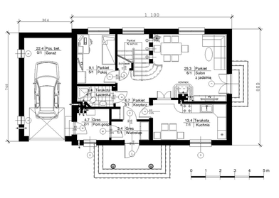
RZUT PARTERU:
WARIANT KOLORYSTYCZNY:
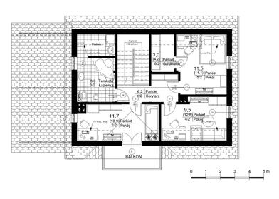
RZUT PODDASZA:
MINIMALNE WYMIARY DZIAŁKI (WERSJA BEZ GARAŻU):
MINIMALNE WYMIARY DZIAŁKI (WERSJA Z GARAŻEM):
ANIMACJA:


Program PARTERU:
1. Przytulny pokój dzienny z kominkiem i wyjściem na taras z dowolnej strony;
2. Schody "spływające" półkolem na salon i ażurowa przestrzeń klatki schodowej nadają wnętrzu otwarty, przestronny charakter;
3. Jadalnia na wprost kuchni;
4. Duża kuchnia ze spiżarką pod schodami, z oknem od frontu;
5. Dodatkowy pokój
(sypialnia, gabinet lub pokój gościnny);
6. W pełni funkcjonalna łazienka z prysznicem;
7. Duże, wygodne pomieszczenie gospodarcze, umożliwiające zainstalowanie nawet większych pieców. Standardowo projektujemy kocioł gazowy.

Program PODDASZA:
1. Duża sypialnia rodziców z garderobą;
2. Dwie sypialnie dla dzieci, miejsca na szafy wnękowe;
3. Duża łazienka z pralnią; balkon;


Podstawowe dane techniczne:

Powierzchnia zabudowy budynku z garażem - 115,2m2
Powierzchnia zabudowy budynku w opcji bez garażu - 88,0m2
Powierzchnia użytkowa- 116,2m2 +  miejsce parkingowe w garażu (22,4m2)
Powierzchnia całkowita (wszystkie kondygnacje po obrysie zewnętrznym murów, z tarasami, schodami i balkonami) - 242,5m2

Nachylenie dachu w stopniach: 45 w części mieszkalnej i 30 nad garażem
Pokrycie dachu: blachodachówka (z możliwością dachówki)

Ciepłe ściany
: o współczynniku U=0,19W/(m2xK) - bloczki z betonu komórkowego gr. 24cm + styropian
(możliwość dowolnej zmiany rodzaju i grubości izolacji na podstawie zgody na zmiany)

Strop TERIVA, schody wewnętrzne - żelbetowe

Projekt pełnobranżowy, z wszystkimi instalacjami.



...    

PROPOZYCJA ZMIANY:
Projekt U12 jest bardzo plastyczny i łatwo daje się modyfikować.
Poniżej przedstawiamy pomysł rearanżacji parteru na życzenie jednej z nazych klientek,
polegający na dodaniu małego dodatkowego gabinetu (np. księgowej) z poczekalnią, w miejscu dawnego pomieszczenia gospodarczego.
Kotłownię przenosimy w tej wersji na tył garażu. Zmiana ma charakter kosmetyczny i można jej dokonać na etapie adaptacji do działki.


Propozycja z dodatkowym gabinetem:

ZDJĘCIA Z REALIZACJI:


Podoba Ci się ten dom, ale jest za mały?
Zobacz podobny projekt, w wersji "KOMFORT":   projekt U21


Tu jeszcze mniejszy dom:
U10 - 90,5m2
lub tani, parterowy P10
P10 - 79,7m2 + garaż
Wróć do spisu treści