Przejdź do treści

U21L 139m2

Nasz profil > KATEGORIE > DOMY PARTEROWE Z PODDASZEM
KOLEKCJE PROJEKTÓW:

U21
wersja lustrzana
(tu zobacz wersję podstawową)
cena: 1999zł

KOMFORTOWY, PROSTY, NIEDUŻY DOM
o powierzchni użytkowej 138,8m2,
dla 4-5 osobowej rodziny, pełnobranżowy, z wszystkimi instalacjami.

Parter z użytkowym poddaszem, z garażem lub bez - w zależności od funduszy, ponieważ garaż nie jest konstrukcyjnie zależny od reszty budynku. Można go usunąć lub wybudować w drugim etapie.
Cztery duże sypialnie oraz przestronny salon z jadalnią otwartą na ogród od wschodu, południa lub zachodu.

- Rzadkość w projektach gotowych - piękny ZADASZONY taras
- wprost z kuchni lub jadalni (praktycznie!), idealny na grillowanie w ciepłe, nawet deszczowe dni. W czasie upału - daje upragniony cień.

- Duży garaż
, celowo powiększony - bez problemu pomieści oprócz samochodu - rowery, kosiarkę, narzędzia ogordowe, trochę kominkowego drewna itp. Garaże w większości projektów gotowych są zmniejszone do granic normy i nie mają tych możliwości.

U21 - Komfortowy, nieduży dom z zadaszonym tarasem... - wersja w lustrzanym odbiciu
... wygodny, prosty w budowie, bez zbędnych udziwnień - za to w 100% PRAKTYCZNY...

Cena: 1999zł/kpl.

ZADASZONY taras dostępny wprost z kuchni lub jadalni (praktycznie!), idealny na grillowanie w ciepłe, nawet deszczowe dni. Podczas upału daje upragniony cień...

Powierzchnia użytkowa

139,8m2

Pow. zabudowy

110,4m2

Pow. zab. z garażem

144,9m2

P.z. z gar.i tarasem

175,6m2

Kubatura

790m3

Wysokość

8,59m

Kąt nachylenia dachu

38

Garaż (28,8m2 dod.)

tak/nie

DO WERSJI PODSTAWOWEJ:
ELEWACJA FRONTOWA:
ELEWACJA GARAŻOWA:
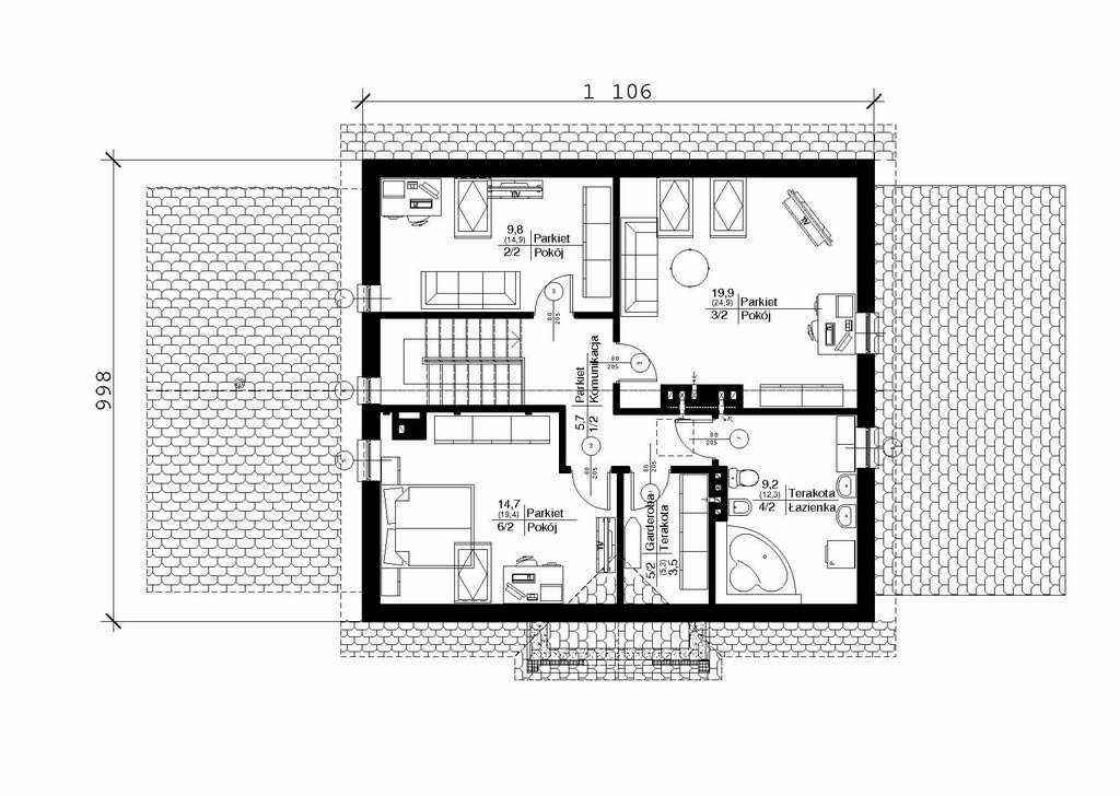
RZUT PARTERU:
ELEWACJA OGRODOWA:
ELEWACJE:
ANIMACJA:
RZUT PODDASZA:

- Pomieszczenie gospodarcze przewiduje możliwość zainstalowania PIECA WĘGLOWEGO - gdyż ma aż 10m2. Idealne miejsce do pomajsterkowania. (standardowo projektujemy  piec gazowy)

- Dodatkowy pokój na dole
można wykorzystać jako gabinet lub sypialnię.

- Wysoka ścianka kolankowa
tzw. "na 4 pełne pustaki" - daje na poddaszu bardzo małe skosy, co czyni powierzchnię podłogi praktycznie całą wykorzystywalną i faktyczna powierzchnia użytkowa jest większa niż obliczana normatywnie. W tym projekcie nie trzeba "podnosić ścianki kolankowej" na własną rękę. Już jest podniesiona.

- Prostokątny kształt sprawia, że dom jest tani i łatwy w budowie. Prostota konstrukcji dachu również decyduje o jego opłacalności (lekka blachodachówka, proste połacie - a więc brak odpadów)

- Projekt dodatkowo
zawiera rozwiązanie kominka z grawitacyjnym systemem Dystrybucji Gorącego Powietrza na poddasze. Pozwala to na ewentualne ogrzanie domu kominkiem - bez konieczności budowy centralnego ogrzewania w pierwszych latach zamieszkiwania. Daje to kolejne oszczędności na budowie (brak koniczności zakupu kotła C.O.) i czyni go jeszcze tańszym i bardziej dostępnym.
Cały komin kuchenno - łazienkowy można zastąpić tanimi kształtkami PCV !

Dom łączy w sobie elegancję, nowoczesność i tradycję.
Z łatwością wkomponuje się w każdą okolicę.

MINIMALNE WYMIARY DZIAŁKI:


Podstawowe dane techniczne:

Powierzchnia  zabudowy  budynku z zadaszonym tarasem  -  175,6 m2
Powierzchnia  zabudowy  budynku bez zadaszonego tarasu  -  144,9 m2

Nachylenie dachu w stopniach: 38  w części mieszkalnej i 25 nad garażem
Pokrycie dachu: blachodachówka

Ciepłe ściany:
bloczki z betonu komórkowego gr. 24cm + styropian 12cm
o współczynniku U=0,24 W/(m2xK)

Strop
TERIVA,  schody wewnętrzne - żelbetowe

Powierzchnia użytkowa (mieszkalna): 139,8m2
Powierzchnia garażu: 28,8m2


Uwaga: dostępna wersja podstawowa oraz w  lustrzanym  odbiciu.

...


Czy ten dom jest dla Ciebie zbyt drogi?
Tu zobacz podobną, tańszą wersję zmniejszoną:   projekt U12



Wróć do spisu treści