Przejdź do treści

U22L 183,7m2

Nasz profil > KATEGORIE > DOMY PARTEROWE Z PODDASZEM
KOLEKCJE PROJEKTÓW:

U22
wersja  lustrzana
(tu zobacz wersję podstawową)



         Elegancki i nowoczesny
dom dla 4-5 osobowej rodziny, pełnobranżowy, z wszystkimi instalacjami.
Parter z użytkowym poddaszem, z garażem 2-stanowiskowym
w bryle budynku. Dostępna jest również wersja mniejsza "U23" - z garażem na jedno auto i kuchnią od frontu.

Jego atutów jest naprawdę wiele
,
a to tylko niektóre z nich:

- duży zadaszony taras
, dostępny z najważniejszych pomieszczeń w domu: z kuchni, z jadalni i z salonu - praktycznie!
- dodatkowy pokój na dole
,
- dwustanowiskowy garaż, z dostępem z wiatrołapu;
- spiżarka przy kuchni
(w ciągu urządzeń!), doświetlona oknem.
- pralnia na dole
, dzięki czemu pralka nie zabiera już miejsca w łazience.
- dom dla przeciwników
klatki schodowej w salonie;
          
          Na poddaszu zaprojektowano 4 pokoje, centralną garderobę, dwie łazienki: duża i mała oraz garderobę zimową (schowek)

Strych nad poddaszem (hmax=~1,6m) dostarcza kolejne metry kwadratowe powierzchni magazynowej - np. na akcesoria zimowe, kartony po RTV, itp.
         Tradycyjna konstrukcja domu decyduje o niższych kosztach budowy.
         W projekcie przewidziano
dodatkowy kanał grzewczy przy kominku, pozwalający na rozprowadzenie instalacji DGP (Dystrybucji Gorącego Powietrza) na poddasze.

...

U22 - Komfortowy i funkcjonalny dom z werandą... - wersja w lustrzanym odbiciu
... zaprojektowany z myślą o dzialkach również z bocznym południem

Cena: 3000zł/kpl.

Komfortowy i funkcjonalny dom dla 4-5 osobowej rodziny. Parter z użytkowym poddaszem, z dużym garażem dwustanowiskowym w bryle budynku oraz zadaszonym tarasem.

Powierzchnia użytkowa

183,7m2

Pow. zabudowy

155,8m2

Pow. użytkowa z garażem

222,9m2

Kubatura

848m3

Wysokość

8,5m

Kąt dachu

38 st.

Garaż 2-stanowisk.

39,2m2

DO WERSJI PODSTAWOWEJ:
ELEWACJA FRONTOWA:
ELEWACJA OGRODOWA:
RZUT PARTERU:
ELEWACJA GARAŻOWA:
WARIANT KOLORU:
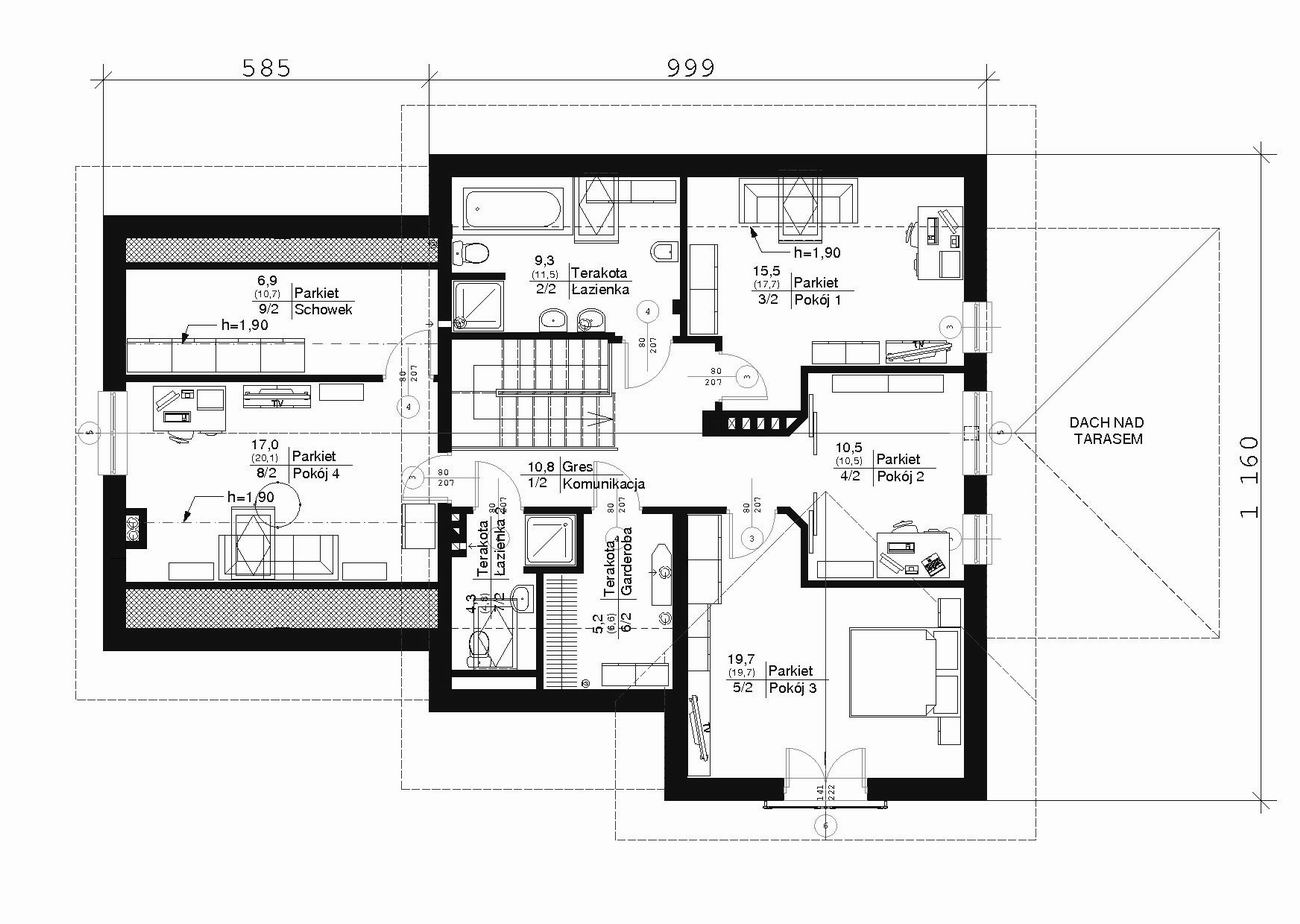
RZUT PODDASZA:
WARIANT KOLORU:
WARIANT KOLORU:
ANIMACJA:
MINIMALNE WYMIARY DZIAŁKI:


Program użytkowy:



Program PARTERU:
- Wiatrołap z miejscem na szafę, komunikujący również dom z garażem;

- Hall z miejscem na szafę i bezpośrednim wejściem do każdego pomieszczenia na parterze
- Duży, jasny pokój dzienny z kominkiem i wyjściem na taras;
- Jadalnia dla  6/12 osób bezpośrednio przy kuchni;
- Kuchnia doświetlona dwoma oknami, z dyskretnym stolikiem śniadaniowym;
- Spiżarka - bezpośrednio z kuchni;
- Zadaszony duży taras, z dostępem z najważniejszych pomieszczeń: kuchni jadalni i salonu
- Dodatkowy pokój (sypialnia, gabinet lub pokój gościnny) o pow. ok. 11m2;
- W pełni funkcjonalna łazienka (z prysznicem);
- Duże pomieszczenie gospodarcze z miejscem na pralką pod schodami;
- Duży 2-stanowiskowy garaż. Jego powierzchnia bez problemu pomieści oprócz dwóch samochodów - rowery, kosiarkę, motocykl, narzędzia ogordowe, trochę kominkowego drewna itp.

Program PODDASZA:

- przestronny hall z mozliwością otwarcia scianą kurtynową na ogród;
- sypialnia
rodziców z boczną garderobą;
- dwie
sypialnie dla dzieci;
- gabinet
do pracy, o pow. 10,5m2 dostępny z korytarza, który można otworzyć i pozostawić jako duży doświetlony hall
- duża łazienka z wanną i prysznicem;
- dodatkowe WC z prysznicem;
- duża garderoba z miejscem do prasowania, dostępna z korytarza;
- druga
gadreroba, tzw. "zimowa" - schowek;
- wejście na strych z korytarza włazem strychowym;
Wysokie ścianki kolankowe:

- w sypialni rodziców: 180cm

- w pozostałych pomieszczeniach: min.100-120cm

STRYCH:

- jako dodatkowa powierzchnia magazynowa, hmax=1,65m


Podstawowe dane techniczne:



- Powierzchnia zabudowy: 155,8m2
- Powierzchnia użytkowa:  183,7m2 - bez garażu
- Powierzchnia użytkowa z garażem:  222,9m2
- Powierzchnia garażu:  39,2m2

- ciepłe ściany zewnętrzne
: pustak ceramiczny 25cm  
 (Porotherm) + styropian 15 cm, U=0,22W/(m2xK) (!)

- elewacje: tynk cienkowarstwowy w różnych kolorach, elementy z płytek klinkierowych, itp.;
- strop: żelbetowy TERIVA
- dach: dwuspadowy, nachylenie dachu w stopniach: 38
- więźba drewniana, pokrycie dachu: dachówka (z  możliwością blachodachówki)
- kocioł C.O.: gazowy
- dodatkowo kominek z systemem Dystrybucji Gorącego Powietrza (turbinowy)
- ściany fundamentowe z bloczka betonowego + ławy żelbetowe
- Projekt z wszystkimi instalacjami: C.O., gaz., wod., kan.,       elektr.

...ponad PROGRAM:


- Klatka schodowa
nie ingeruje swą obecnością w spokój domowników. Umieszczona w hallu za ścianą salonu - umożliwia swobodną komunikację bez oddziaływania na użytkowników pokoju dziennego;

- otwarta przestrzeń
części dziennej parteru sięga od aneksu TV aż po kuchnię, czyli ok. 11metrów! Daje to wrażenie ogromnej przestrzeni - pomimo iż dom nie jest duży.

- na połączeniu salonu i kuchni zaprojektowaliśmy małą ściankę.
Zasłania ona widok
na tą część kuchni, która z reguły nie jest do oglądania - czyli zlew i kuchenka.  Od strony salonu - aranżacja ścianki należy do Inwestora, od strony kuchni - proponujemy podręczny, śniadaniowy stolik.

- W projekcie przewidziano
dodatkowy kanał grzewczy przy kominku, pozwalający na rozprowadzenie instalacji DGP (Dystrybucji Gorącego Powietrza) na poddasze. Pozwala to na ogrzanie domu kominkiem - bez konieczności budowy centralnego ogrzewania w pierwszych okresach użytkowania.


Wróć do spisu treści