Przejdź do treści

U10B 107,0m2 Projekt małego taniego domu z garażem

Nasz profil > KATEGORIE > DOMY PARTEROWE Z PODDASZEM
KOLEKCJE PROJEKTÓW:

U10B - Mały, ale "wszystkomający"    _WERSJA LUSTRZANA / wersja podstawowa

wszystkie informacje i cena dotycz¹ ograniczonej oferty promocyjnej___________ ...zapytaj o ten projekt

U10B
(Projekt U10 ( tu zobacz pełny opis U10 ) z dodatkowym pokojem nad garażem)

wersja  lustrzana
(tu zobacz wersję podstawową)

cena:
3000zł

          Bardzo
tani i prosty w budowie dom dla 4-osobowej rodziny.
U10B
to kontynuacja popularnego projektu z naszego biura - U10, wynikająca z sugestii i potrzeb naszych dotychczasowych klientów.
         
Zmiany w U10B:
- powiększyliśmy powierzchnię mieszkalną z 90m2 do 107m2
, zagospodarowując przestrzeń nad garażem dodatkowym 17metrowym pokojem sypialnym. Podnosi to nieco koszty budowy i wprowadza konieczność budowy garażu - ale stosunkowo niewielkim kosztem daje dodatkowo dużą sypialnię w ramach tej samej powierzchni zabudowy.
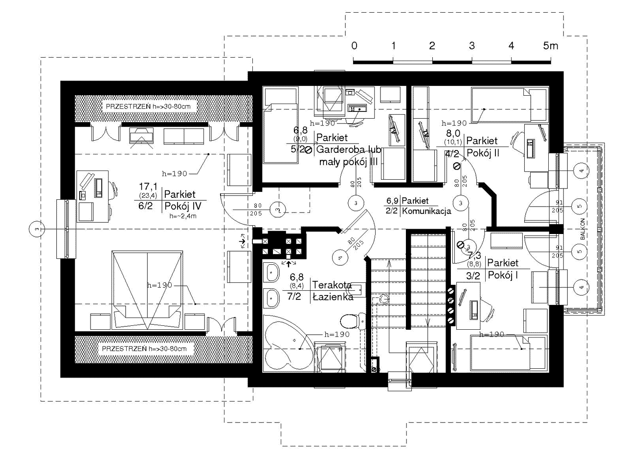
- w pokoju 4/2 (II) powiększyliśmy powierzchnię z 8,4m2 na 10,1m2
(po podłodze) i w wyniku tego korzystnej zmianie uległ układ drzwi.

Program domu:

Parter z użytkowym poddaszem - cztery pomieszczenia na górze oraz przestronny salon z jadalnią otwartą na ogród - na dole.
          Wysoka ścianka kolankowa  
tzw. "na 5 pustaków" - daje na poddaszu bardzo małe skosy, co czyni powierzchnię podłogi praktycznie całą wykorzystywalną i faktyczna powierzchnia użytkowa jest większa niż obliczana normatywnie.
Na parterze pomieszczenie gospodarcze łączy się z garażem.
          Mała powierzchnia zabudowy
(niecałe 100m2) - sprawia, że jest tani w budowie (mało fundamentów, mało stropu, mało dachu). Prostota konstrukcji dachu również decyduje o jego opłacalności  (lekka blachodachówka, proste połacie - a więc brak odpadów)

            

RZUT PARTERU:
RZUT PODDASZA:
ANIMACJA:

                 Projekt zawiera dodatkowo rozwiązanie kominka z grawitacyjnym systemem Dystrybucji Gorącego Powietrza na poddasze. Pozwala to na ogrzanie całego domu kominkiem - bez konieczności budowy centralnego ogrzewania w pierwszych latach zamieszkiwania. Daje to kolejne oszczędności na budowie (brak koniczności zakupu kotła C.O.) i czyni go jeszcze tańszym i bardziej dostępnym.
           
                 Cały komin kuchenno - łazienkowy  można zastąpić tanimi
kształtkami PCV !
Malownicza i przyjazna architektura
domku - czynią go przytulnym i gościnnym...

Projekt pełnobranżowy, z wszystkimi instalacjami.


Niska cena projektu
1699zł - to spora oszczędność na "dobry początek"
Projekt U10 jest bardzo plastyczny i łatwo daje się modyfikować.


...tu zobacz różne warianty modyfikacji U10...


...

Powierzchnia użytkowa

107,0m2

Powierzchnia zabudowy

64,0m2

Pow. zabud. z garażem

99,6m2

Kubatura

632m3

Wysokość

9,0m

Kąt nachylenia dachu

45

Garaż (dodatkowo)

30,6m2

Podoba Ci się ten dom, ale jest za mały?
Zobacz nieco większy:   projekt U12



Wróć do spisu treści