Przejdź do treści

U10L 90,5m2

Nasz profil > KATEGORIE > DOMY PARTEROWE Z PODDASZEM
KOLEKCJE PROJEKTÓW:

U10
wersja  lustrzana
(tu zobacz wersję podstawową)



          Tani i prosty
w budowie dom dla 4-osobowej rodziny, pełnobranżowy, z wszystkimi instalacjami.
Parter z użytkowym poddaszem,  z garażem lub bez - w zależności od funduszy lub do wybudowania w przyszłości.  
Wysoka ścianka kolankowa  
tzw. "na 5 pustaków" - daje na poddaszu bardzo małe skosy, co czyni powierzchnię podłogi praktycznie całą wykorzystywalną i faktyczna powierzchnia użytkowa jest większa niż obliczana normatywnie. Daje nam też dodatkowo potężny STRYCH (~30m2 po podłodze!) - który w najwyższym miejscu przekracza wysokością 2m! (widoczne na rysunku przekroju). Strych dostarcza kolejne metry kwadratowe powierzchni składowej - np. na akcesoria zimowe, kartony po RTV, czy dodatkowe szafy.
Na parterze pomieszczenie gospodarcze łączy się z ewentualnym garażem.
         Mała
powierzchnia zabudowy (kwadrat 8mx8m bez garażu) - sprawia, że jest tani w budowie (mało fundamentów, mało stropu, mało dachu). Prostota konstrukcji dachu również decyduje o jego opłacalności  (lekka blachodachówka, proste połacie - a więc brak odpadów)
           Projekt zawiera
dodatkowo rozwiązanie kominka z grawitacyjnym systemem Dystrybucji Gorącego Powietrza na poddasze. Pozwala to na ogrzanie domu kominkiem - bez konieczności budowy centralnego ogrzewania w pierwszych okresach użytkowania. Daje to kolejne oszczędności na budowie (brak koniczności zakupu kotła C.O.) i czyni go jeszcze tańszym i bardziej dostępnym. Cały komin kuchenno - łazienkowy  można zastąpić tanimi kształtkami PCV !
Malownicza i przyjazna architektura
domku - czynią go przytulnym i gościnnym...

Projekt U10 jest bardzo plastyczny i łatwo daje się modyfikować.
Tu:
wersja 5-pokojowa
Tu:
wersja podpiwniczona

...

U10 - Mały, ale "wszystkomający" _WERSJA LUSTRZANA/podstawowa
Parter z poddaszem, z garażem lub bez  (1-stanowisk.)
- kuchnia, 4 pokoje, 2 łazienki, garderoba, zimny schowek, pomieszcenie gospodarcze_


CENA:
3000zł/kpl.

Bardzo tani i prosty w budowie dom dla 4-osobowej rodziny. Parter z użytkowym poddaszem, z garażem lub bez - w zależności od funduszy (garaż niezależny konstrukcyjnie od reszty budynku.)

Powierzchnia użytkowa

90,5m2

Pow. zabudowy

64,0m2

Pow. zabudowy z garażem

99,6m2

Kubatura

567m3

Wysokość

9,0m

Kąt dachu

45 st.

Garaż 30m2 dodatk.

tak/nie

DO WERSJI PODSTAWOWEJ:
ELEWACJA FRONTOWA:
ELEWACJA OGRODOWA:
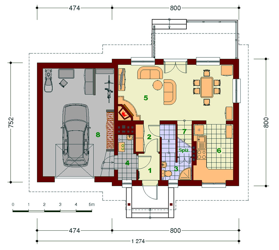
RZUT PARTERU:
POWIERZCHNIE PARTERU:
1.Wiatrołap
2,6m2
2.Hall
2,3m2
3.Łazienka
4,4m2
4.Pom. gosp.
3,4m2
5.Salon z jadalnią
25,7m2
6.Kuchnia
8,7m2
7.Schody 50%
3,5m2
8.Garaż
30,6m2
PRZEKRÓJ:
RZUT PODDASZA:
POWIERZCHNIE PODDASZA:
1.Schody 50%
3,5 m2
2.Komunikacja
4,5 m2
3.Pokój
7,3/8,8 m2
4.Pokój
6,7/8,4 m2
5.Garderoba
2,3/3,0 m2
6.Sypialnia
8,6/10,4 m2
7.Łazienka
6,8/8,4 m2
użytkowa / po podłodze
WARIANT KOLORU:
ANIMACJA:
MINIMALNE WYMIARY DZIAŁKI:


Program użytkowy:



Program PARTERU:
-  wiatrołap, doświetlony okienkiem nad drzwiami, komunikujący również dom z garażem
(ewentualnym);
- Hall z miejscem na szafy i dyskretnym wejściem do łazienki
- Duży pokój dzienny z kominkiem i wyjściem na taras;
- Jadalnia 6/10 osób na wprost kuchni;
- Kuchnia z oknem od frontu domu;
- W pełni funkcjonalna łazienka (z prysznicem) - pod schodami;
- Miejsce na spiżarkę - w najgłębszym miejscu domu (naturalny chłód)
- pomieszczenie na piec
- duży garaż, który nie musi być ogrzewany, bo jest "doklejony" do bryły domu. Jego powierzchnia bez problemu pomieści oprócz samochodu - rowery, kosiarkę, narzędzia ogordowe, trochę kominkowego drewna itp. Garaże w większości projektów gotowych są zmniejszone do granic normy i nie mają tych możliwości.

Program PODDASZA:

- jasny korytarz doświetlony w polaci dachu;
- sypialnia rodziców garderobą;
- dwie sypialnie dla dzieci, każda z dostępem do balkonu;
- wejście na strych z korytarza włazem strychowym;
- duża łazienka z oknem;

STRYCH:

- 30m2 dodatkowej powierzchni magazynowej (po podłodze);
- wysokość w najwyższym punkcie ponad 2m;
- dostępny schodami opuszczanymi z korytarza;
- doświetlony szklonym wyłazem dachowym;
- możliwość adaptacji wg własnych pomysłów.

WARIANT KOLORU:


Podstawowe dane techniczne:



- Powierzchnia zabudowy całego budynku (z garażem): 99,6m2
- Powierzchnia zabudowy bez garażu: 64,0m2
- Powierzchnia użytkowa:  90,5m2
- bez garażu
- Powierzchnia użytkowa:  121,1m2 - z garażem
- Powierzchnia garażu:  30,6m2

- ciepłe ściany zewnętrzne
: pustak gazobetonowy 24cm (beton komórkowy) + styropian, U=0,20W/(m2xK) (!)
- elewacje: tynk cienkowarstwowy, detale drewniane, elementy z płytek gresowych itp.;
- stropy: żelbetowe TERIVA
- dach: dwuspadowy, nachylenie dachu w stopniach: 45
- więźba drewniana, pokrycie dachu: blachodachówka (z mozliwością dachówki)
- kocioł C.O.: gazowy
- dodatkowo kominek z grawitacyjnym
systemem Dystrybucji Gorącego Powietrza (bezturbinowy!)
- ściany fundamentowe z bloczka betonowego + ławy żelbetowe
- Projekt  z wszystkimi instalacjami: C.O., gaz., wod., kan., elektr.





...ponad PROGRAM:

- Projekt zawiera dodatkowo rozwiązanie kominka z grawitacyjnym (bezturbinowym!) systemem Dystrybucji Gorącego Powietrza na poddasze. Pozwala to na dogrzanie całego domu jedynie kominkiem i to bez udziału energii elektrycznej.
Jest to znakomite zabezpieczenie na wypadek np. awarii instalacji C.O.  Pozwala też użytkować dom jako rekreacyjny (powietrzna instalacja kominkowa nie zawiera rur z wodą, która zimą by zamarzła).
- Klatkę schodową wykorzystano jako sklepienie nad łazienką i spiżarką parteru, dzięki czemu zyskujemy dodatkowo ok.7 m2, a każde miejsce w domu jest wykorzystane;
- Dzięki małej powierzchni zabudowy
- dom mieści się  już na działce 400-500m2, przy uwzględnieniu wskaźnika powierzchni biologicznie czynnej na poziomie nawet 75%

ELEWACJA FRONTOWA
ELEWACJA OGRODOWA:
ELEWACJA BOCZNA:
ELEWACJA GARAŻOWA:
Zobacz też nieco większy:
U12 - 116m2 + garaż
lub tani, parterowy P10
P10 - 79,7m2 + garaż
Wróć do spisu treści